13776369668
武峰管道
![]() |
![]() |
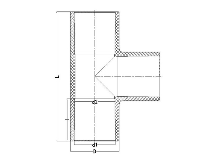
| Nominal | Socket Type | Structural Diameter | ||||
| SIZE | d1 | d2 | I | D | d | L |
| 1/2" | 22.40 | 21.52 | 30.0 | 29.00 | 16.0 | 83.60 |
| 3/4" | 26.45 | 25.42 | 35.0 | 33.10 | 20.0 | 100.30 |
| 1" | 32.55 | 31.37 | 40.0 | 40.00 | 25.0 | 115.80 |
| 1-1/4" | 38.60 | 37.31 | 44.0 | 46.00 | 31.0 | 130.50 |
| 1-1/2" | 48.70 | 47.21 | 55.0 | 57.00 | 40.0 | 164.00 |
| 2" | 60.80 | 59.10 | 63.0 | 70.00 | 51.0 | 192.00 |
| 2-1/2" | 76.60 | 75.30 | 64.0 | 88.00 | 72.0 | 216.00 |
| 3" | 89.60 | 88.29 | 64.0 | 104.60 | 77.0 | 227.00 |
| 4" | 114.70 | 113.20 | 84.0 | 134.00 | 100.0 | 303.00 |
相關產品